Välkommen in till radhusen i Smedjan

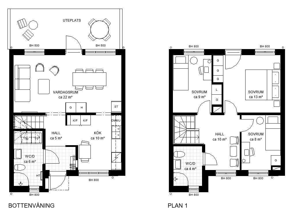
Under första kvartalet 2026 planerar vi starta uthyrningen av den första etappen i Smedjan med 13 radhus. Inflyttning sker från hösten 2026. Radhusen är 91 kvm stora och rymmer 4 rum och kök i två våningar.

Vardagsrum i Hebas radhus i Smedjan i Källberga
Sovrum i Hebas radhus i Smedjan i Källberga
Hebas hyreslägenheter i Smedjan Källberga
Hebas hyreslägenheter i Smedjan i Källberga
Badrum i Hebas radhus i Smedjan i Källberga
Fasadbild på Hebas radhus i Smedjan i Källberga
Hebas lägenheter i Smedjan i Källberga
Gård på Hebas radhus i Smedjan i Källberga