Storlekar

Lägenheterna är fördelade på 1:or till 5:or, mellan 29 och 104 kvm. Radhusen och en del större lägenheter är i etage.

Materialval

I vardagsrum, sovrum och kök ligger genomgående ekparkett, medan hallen har ekparkett kombinerat med grått instegsklinker innanför ytterdörren. Väggarna är ljust målade i samtliga rum och kompletteras av vita innerdörrar. Alla fönster är utrustade med persienner.

Kök

Lägenheterna är utrustade med moderna kök från Marbodal med sandbeige köksluckor. Köken har kyl och frys, integrerad induktionshäll, inbyggnadsugn, diskmaskin samt inbyggd mikrovågsugn. Stänkskyddet består av vitt kakel, vilket ger ett stilrent och tidlöst intryck.

Badrum

Badrummet är helkaklat med vitt kakel och grått klinkergolv. Det är utrustat med kommod, spegel, handfat och en hörndusch med glasväggar. Tvättmaskin och torktumlare, alternativt en kombimaskin, ingår. Här finns även en elektrisk handdukstork.

Balkong eller uteplats

Merparten av lägenheterna har balkong eller uteplats, dessutom har alla tillgång till gemensam gård.

Förråd

Alla lägenheter har tillgång till ett externt förråd.

Tvättstuga

Alla lägenheter har tvättmaskin.

Hiss

Finns i några av flerbostadshusen, men inte i alla.

 

 

Film

Följ med in i ett av radhusen

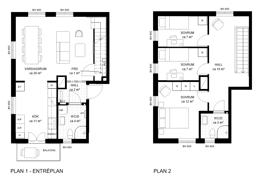
Planritning radhus

Radhusen rymmer 4 rum och kök, om 91 kvm fördelat på två plan.

 

Radhus om 4 rum och kök

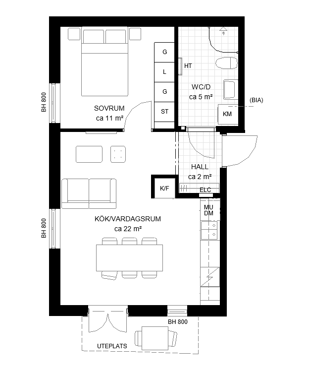
Exempel på planritningar lägenheter

Lägenheterna i flerbostadshusen är fördelade på 1:or till 5:or, mellan 29 och 104 kvm. En del större lägenheter är i etage.

1 rum och kök
2 rum och kök
3 rum och kök
4 rum och kök